Welcome to Yorkville University’s Bachelor of Interior Design Student Showcase
Explore the creativity and innovation of Yorkville University’s Interior Design graduates. This showcase highlights exceptional student projects that blend research, artistry, and technical skills—offering a glimpse into the future of interior design through the eyes of our emerging professionals.
Cassidy Stober
AERIE – A COMMUNITY CENTRE AND SHELTER FOR THE LOW INCOME AND HOMELESS
Cassidy Stober
This thesis project aims to address the rise of homelessness and low-income community members among Canada’s population. By addressing the areas in which society has failed this population, I hope to uncover strategies and solutions to rehabilitate the homeless population, support low-income community members, and provide a healing environment where individuals can find renewal and restoration.
Madison Kowaluk
SOTERIA SERVICES – LIGHT BEYOND DARKNESS
Madison Kowaluk
Soteria, meaning deliverience in Greek, is associated with deliverance from a crisis. Soteria Services aims to provide services to allow people to move forward from crisis, whether this includes displacement, living without a home or other circumstances. Natural disasters, emergency situations and homelessness can leave people with limited options, impacting their financial stability, emotional and physical well-being, and interpersonal relationships. This multi-use facility bridges the gap from emergency homeless shelters to permanent housing by providing services not traditionally seen in standard shelters or housing facilities.
Soteria Services includes local and natural influences that bring together transitional and contemporary styling, that creates familiarity and comfort. It emphasizes warm, inviting and slightly subdued colors to provide welcoming surroundings similar to a home, but with the freshness of an outdoor space. Various textures are used to provide depth, further emphasized by light, to limit institutional association in a safe matter. Intuitive patterns, flow and openness provide predictability and openness, among other important considerations of trauma-informed design. The design evokes feelings of hope and calmness with an overall unity to foster an environment that will allow people to move forward on their path to finding light beyond darkness.
Noora Aziz
CANVAS OF THRIVES CENTER
Noora Aziz
Project Description: The research investigates the efficacy of art-based therapy as a holistic intervention for children with autism, proposing the establishment of a specialized therapy center that integrates various spatial design approaches to enhance their skills and overall well-being.
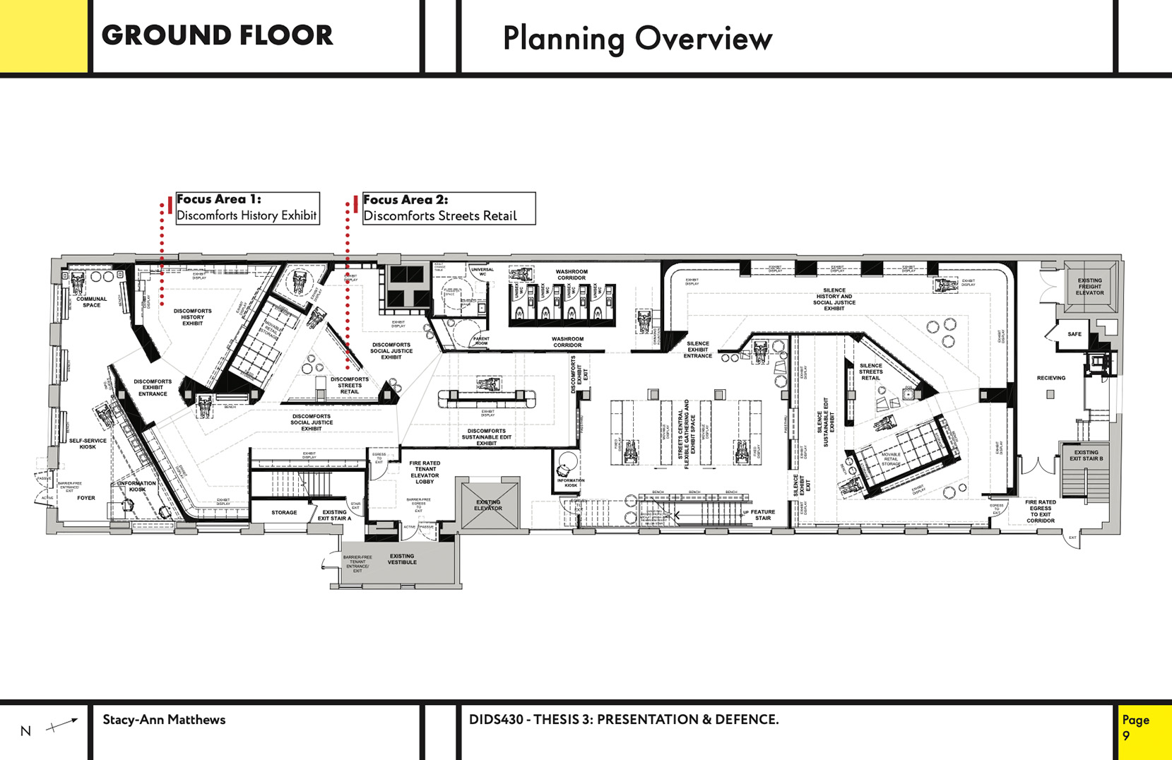
Stacy-Ann Matthews
THE COLLECTIVE SAMPLE X SNEAKER HUB
Stacy-Ann Matthews
What happens when sneaker culture—rooted in self-expression, community, and resistance—is erased by commercialization? Bridging the gap between commercial commodities and cultural history.
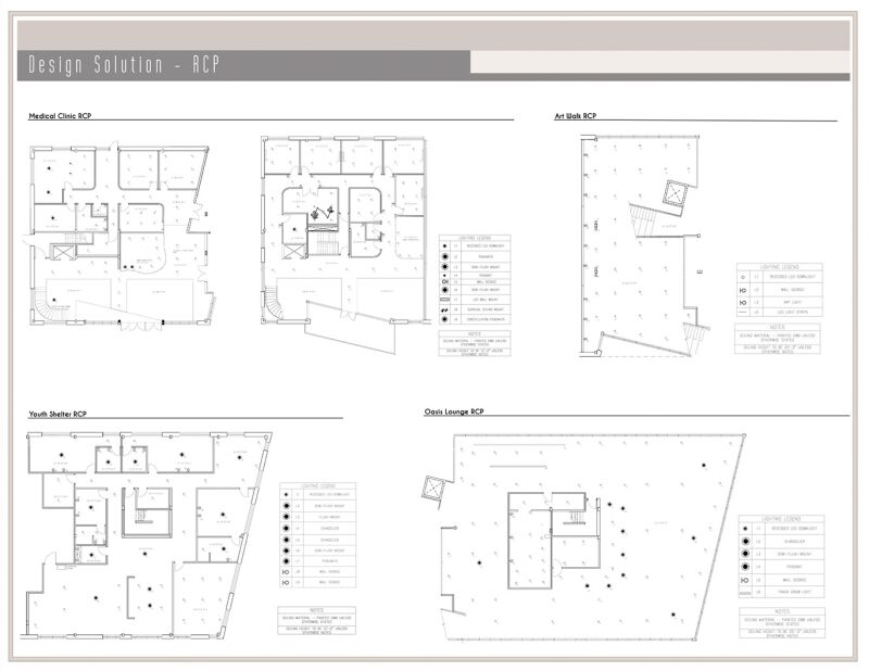
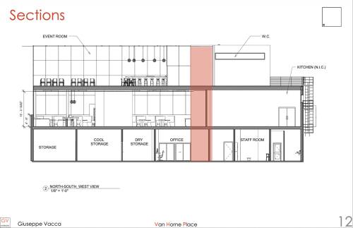
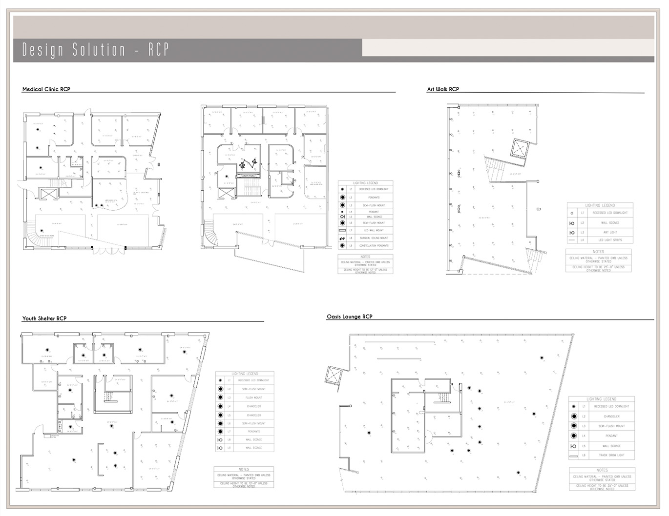
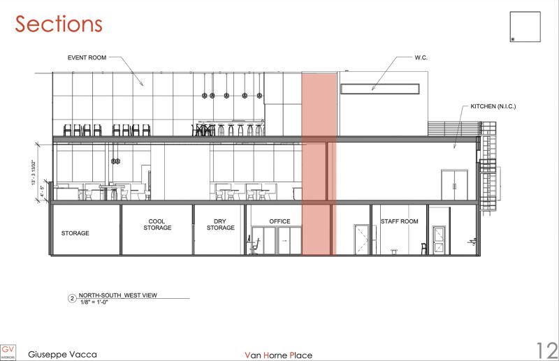
Guiseppe Vacca
VAN HORNE PLACE
Guiseppe Vacca
This Thesis scope is to re-purpose an abandoned 1918 industrial warehouse located within a residential area and give it back to the community. My solution to this problem was to design a restaurant with a large bar and a private event room that would bring entertainment to the neighborhood, a Yoga studio to promote wellbeing, and an indoor piazza + a quite library to reinforce the sense of community by giving the local residents a place where they can hang out any day of the year.
The design concept is Gears and was inspired by the history of the site itself, Hamilton Gears & Machines. The concept was applied within the core of the design through space planning, with interlocking spaces of different sizes and use that work together as one entity. Gears also visually inspired the shape of the interior piazza, as well as the material and finishes used throughout. The project was named after the old street’s name, Van Horne Avenue, to celebrate the industrial history of the neighborhood.
Maha Dahroug
THE IMPACT OF INTERIOR DESIGN ON THE MENTAL HEALTH OF INMATES – IMPROVING REINTEGRATION INTO SOCIETY
Maha Dahroug
The goal of this project is to create a humane design, that reflects a deep understanding and appreciation of the physical and psychological needs equally for both inmates and users of the facility. The study aims at understanding the impact of interior design on the mental health of inmates, helping them to reintegrate productively into society. Embracing a normalized humane design that revolves around the psychological health and well-being of inmates, is the key to success.
The concept is “Key to Life”.
Space planning and a deep understanding of the user’s need is one of the most important attributes to this project’s success. Materiality and choice of sustainable interior finishes and furniture is another key element in this project, enabling the achievement of behaviour improvement of inmates.
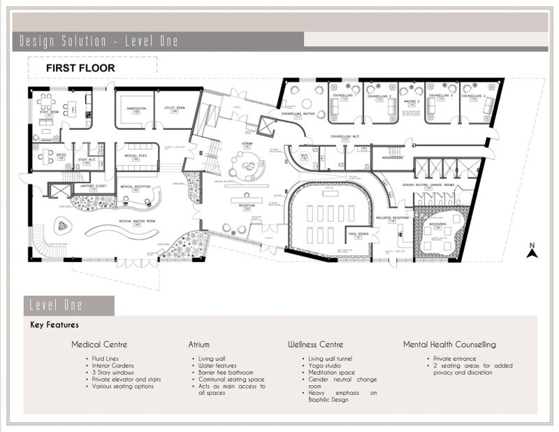
Lindsey Fraser
THE HABITAT LGBTQ+ CENTRE
Lindsey Fraser
The Habitat LGBTQ+ Centre aims to create a haven for those within the LGBTQ+ community to receive affirming care and a sense of community while actively breaking down barriers of discrimination within society.
The Concept is a tree ring, a symbol of growth, history and hardships, provides a unique window into the life of the tree, mirroring the realty of struggle, achievements and the imperfect journey people move through to reach their authentic self.
The design elements throughout the project were strongly influenced by Biophilic Design through incorporating various interior gardens, living walls and water features. This coupled with tall ceilings, 3 story windows and natural materials, the centre creates a unique experience for the users in an effort to create a positive narrative surrounding potentially sensitive experiences.
Matina Shakir
GREEN-DOME
Matina Shakir
The goal of this two-team project was to provide innovatively designed disaster relief shelters to areas in the Indonesian sub-continent that are affected by earthquakes, volcano eruptions, floods & tsunamis. We focused on designing shelters that are movable, fire and food-resistant, are sourced from sustainable, vernacular materials, and most importantly – offer the victims a sense of security, comfort and dignity in the wake of such crises. My role in this project was to research & develop the concept, and to execute & render the floor plans and presentation.
Concept: Indonesia’s national flower & the world’s largest – Rafflesia Arnoldii – stands strong bereft leaves, stems and roots – the tightly woven petals of its dome shaped bud concealing its potential until the time is ripe; Green-Dome is designed to be an earthquake resistant, eco-friendly, cost-effective, emergency shelter solution – which takes its inspiration from the Rafflesia flower. Dome-shaped without any interior supports, it aims to provide victims of earthquakes and floods a sanctuary for new beginnings, to heal, recover and reclaim their lost potential.
Lori Paine
FOUNDERS GATE
Lori Paine
To create a multi-use project which would create benefit to a diverse society. The overall objective of the project was to combine the support of the community, use conscious ideations on environment, and support local business practices to allow for a balance in lifestyle and community. Through the goals of creating Human interaction and connectivity between individuals and household diversities, the project will promote health and wellbeing to the community, and support commerce of local vendors within this multi-use facility.
The concept was Fences – “Good fences makes for good neighbors”- Robert Frost
As people gather in regions natural barriers or manufactured fences between properties represented a boundary. On further observation barriers or fences also provide a sense of connection between entities, stability from the fencesindividual parts uniting, and safety for all within its span. Barriers or fences are what makes a community strong by providing balance, connectivity, and well-being to the overall network of diverse entities. This will then allow for all the elements around it to flourish, prosper, and network together to create a social alliance between all members of the community.
Founders Gate project bought together a multitude of different uses and opportunities to create a space that is innovative to a suburban community. The process of; researching the regions history, addressing the needs of the communities diverse population, providing more sustainable ideas on building practices, and a reaction to the economic status of Alberta’s economy created a project that would successfully create a hub for a supportive community to thrive.
Emma Lawrie
LIFELINE
Emma Lawrie
The goal is to create a restorative, calming environment that complements and enhances the users’ universal goal to provide compassionate care. A collaborative design process ensures the delivery of enduring environments which address the needs of the hospital staff while balancing issues such as image, budget, functional efficiency, future flexibility, growth and on-going maintenance.
My concept was The Palm of the Hand; The palm of the hand has three major lines – the life line, head line, and heart line. The foremost lines represent physical energy, mental energy emotional energy or, in simple terms, body, mind and soul. All these aspects of life are tested every day in a nursing position. To have a space where one could go to revitalize these three aspects, would only create an increase in productivity, and overall well-being.
My project relied heavily on bringing the outside in, and biophilic design attributes. I felt it was important for the space to reflect nature and the feeling you get when you step outside into nature, as the users of this space spend their days in a hospital setting. This was completed using green walls, lighting that omitted natural light temperatures, and the use of natural materials that imitated textures within nature.
Irina Alturmessova
The Art of Void: Transcending from Loneliness to Solitude
Irina Alturmessova
The Art of Void reimagines loneliness as a natural human experience to honour, fostering healthier perceptions of solitude and offering a holistic approach that unites community support, educational resources, mental health services, and the healing power of art. Guided by evidence-based strategies from environmental psychology, the design creates a space rooted in accessibility, activation, and human scale, while encouraging contemplation, choice, and a deep connection to nature. Set within the adaptive reuse of Evergreen Brick Works, space provide an immersive experience enriched by a dynamic interplay of light and shadow, seamlessly merging indoors and outdoors and introducing a sculptural dimension that engages the senses.
The conceptual foundation of The Art of Void is inspired by the mathematical notion of the empty set—a symbol of nothingness that paradoxically serves as the starting point for all structure and meaning. This idea is reinforced by the Latin phrase Ex Nihilo Omnia—from nothing, everything arises. Together, these concepts form a metaphor for loneliness: an emotional void that, while often painful, holds the potential for transformation.
The choice of Evergreen Brick Works reflects this conceptual narrative of transformation. Once an industrial site, it is reimagined as a place of introspection and renewal, where architecture becomes a mediator between absence and presence, isolation and connection. Rather than attempting to eliminate loneliness, the project embraces it—reframing it as a threshold that can evolve into solitude, a state associated with reflection, restoration, and empowerment.
Concept: Ex Nihilo Omnia (Lat.) — from nothing, everything arises
Location: Evergreen Brickworks
Size: 67700 sq.ft.
Allison Hastings
The Loom – Artist Residency & Contemporary Art Gallery
Allison Hastings