Yorkville University’s Nina Kwei was recently recognized by the Association of Registered Interior Designers of Ontario (ARIDO) for her “impeccable professionalism and ethics.”

The class of 2021 Bachelor of Interior Design graduate achieved second place in the Norma Ruth Ridley Scholarship, which honours interior design students who understand the importance of good business practices and professional standards. Program chairs from each of the province’s 10 ARIDO-recognized schools are invited to submit the name of just one student for scholarship consideration.
“I was really surprised (Yorkville) chose me, because there’s a lot of really outstanding students in our school,” said Kwei, who previously earned a certificate in Interior Design Management from the British Columbia Institute of Technology back in 2004.
“I was so honoured and so thrilled to be selected to participate in this scholarship competition.”
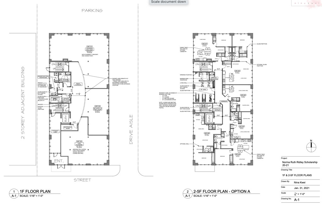
This year’s competition saw Kwei and her fellow entrants tasked with submitting floor plans for a hypothetical, five-storey, mixed-use building to be developed in a former textile manufacturing building.
“The design scenario we were given was that the client had purchased the building and was planning on turning it into a mix of residential and commercial use – so the ground floor will have commercial units rented out to businesses, and then from the second floor to the fifth floor will have residential units,” Kwei explained.
“In the scenario, the building is located in the art district, where it attracts a lot of creatives and young professionals who are aiming for a studio loft-living lifestyle.”
Kwei said she and the other scholarship contenders were also urged to keep Ontario’s current COVID situation top of mind while designing the building – both in terms of carving out work-from-home spaces into the residential unit, as well in their proposals for what types of businesses might be ideal to incorporate into the ground-floor retail spaces.

For the commercial units, Kwei proposed the inclusion of: a Shoppers Drug Mart to “provide all the basic living essentials” for the building’s residents; an Art Supply and Print Shop to cater to the creatives and designers in the neighbourhood; and a Café Patisserie to serve hot beverages, pastries and light snacks to residents.
On the residential side of things, Kwei’s design allowed for six units on each of the remaining four floors of the building, for a total of 24 units – with layouts ranging from 409-square-foot studio apartments, to 854-square-foot two-bedroom units, many of which feature office nooks.
She also incorporated several ‘resident hubs’ into her building design, including a gym, a lounge, three meeting rooms and a co-working space across the four residential floors.
“Overall, this project is designed with humans and the environment in mind,” Kwei wrote in her competition submission to judges. “Every space is well utilized with the intent of maximizing human comfort and minimizing waste.”
When the results of the Norma Ruth Ridley Scholarship competition were announced during ARIDO’s 2021 Annual General Meeting on March 25, Kwei said she was shocked to find out she’d placed second.
“I was, like, ‘Wow,’ when my professor told me, ‘Nina, you’re the second in all of Ontario!’” she said. “It took some time to soak in, but it’s really amazing.”

In fact, the Taiwan-born Kwei said she counts her second-place finish in the competition among her top three accomplishments since enrolling at Yorkville.
She also passed her first NCIDQ (National Council for Interior Design Qualification) exam last fall, and landed a job at Mason Studio in April.
Based in Toronto, with a practice that spans the world, Mason Studio specializes in a wide array of work from award-winning luxury hospitality, retail, to multi-unit residential design projects.
“They are a very diverse and welcoming company that has a lot of different types of projects. Currently, I’m working on a couple of condo projects in Toronto and in China,” Kwei said, noting that the diversity of Mason’s portfolio comes as a breath of fresh air after she spent six years back in Taiwan working in the retail design sector.
“At Mason Studio, we’re trying to push the limits of interior design and maybe change everybody’s understanding of what condo design is.”
She credits much of her recent success to her time at Yorkville and the interior design knowledge and insights passed down to her by the faculty she learned from.
“I really enjoyed my studies at Yorkville because we had so many amazing professors. I love learning things from them. It was so eye-opening,” she said.
“I think it was the best decision I ever made, deciding to go back to school again and being a full-time student after over eight years of working experience,” she added.
“I picked up so much new design knowledge, like sustainability and inclusive design and all these new ideas and philosophies that are emerging in today’s design world. For me, it was a really, really rewarding experience going back to school.”